2 EN 1
Client : Particulier
Lieu : Chatillon (92)
Mission : Complète
Date : Novembre 2025
Projet de rénovation thermique d'une maison et d'une dépendance.
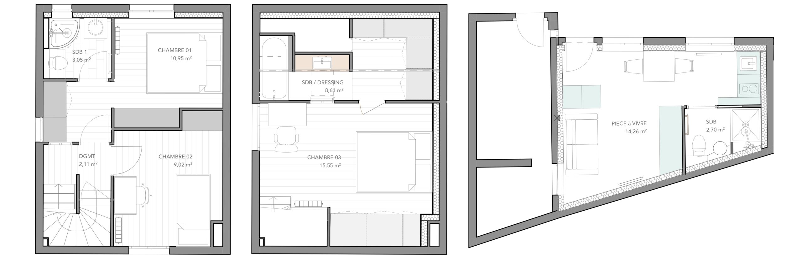
Le projet a consisté à réaménager entièrement le premier étage et les combles d'une maison : création de deux chambres et d’une vraie salle d’eau à l’étage, puis transformation des combles en suite parentale. L’ensemble a été isolé en fibre de bois pour un confort optimal été comme hiver.
Dans un second temps, la dépendance du jardin a été rénovée en studio. Isolé entièrement du sol au plafond, en fibre de bois, et plaque de fermacell/ fibre de bois. Un petit espace où les fonctions sont définis avec une optimisation des rangements. Elle se distingue par une ambiance douce et lumineuse, sublimée par une teinte verte apaisante.

Plan projeté r1 Plan projeté combles Plan dépendance

Photos de la maison AVANT

Photos de la maison APRES



Photos de la dépendance AVANT

Photos de la dépendance APRES


Crédits photos : Christopher Salgadinho
Mentions légales I Design by Thirty Dirty Fingers
© qovop 2020